DLF PRIVANA NORTH

DLF Privana North – The Neighbourhood of Tomorrow

One Address. One Vision. One Kind.

DLF Privana is Gurugram’s most visionary new neighbourhood, set to redefine modern urban living with an ecosystem built on scale, sustainability, and sophistication. Rising on ~116 acres across Sector 76 & 77, Gurugram, Privana brings together like-minded families, world-class infrastructure, and timeless design – a city within a city, crafted by India’s most trusted developer, DLF.

Project Highlights

  • Location: Sector 76 & 77, Gurugram – at the heart of Gurugram 2.0

  • Land Area: ~116 acres master-planned township

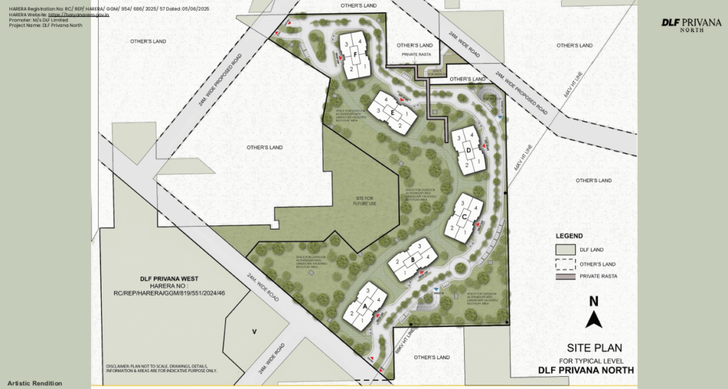
  • Current Phase – Privana North: ~17.7 acres | 6 Towers | 50 Storeys

  • Configuration: Expansive 4BHK Residences & Exclusive Penthouses

  • Total Residences: ~1,164 luxury homes

  • Open Spaces: 80%+ landscaped greens, tree-lined boulevards, and shaded walkways

  • HARERA No.: RC/REP/HARERA/GGM/954/686/2025/57 dated 05-06-2025

The Location Advantage

Strategically located with seamless connectivity to major destinations:

  • Direct access to NH-48, Dwarka Expressway & Delhi–Mumbai Expressway

  • Close to Central & Southern Peripheral Roads

  • Upcoming MRTS, RRTS, Skybus & Bullet Train corridors nearby

  • Surrounded by corporate hubs: American Express, Genpact, PepsiCo, DLF Corporate Greens

  • 20–25 minutes to IGI Airport, New Delhi

Residences – Space, Light & Luxury

    • 4BHK Residences | Carpet Area ~2,236 sq. ft. | Super Area ~3,977 sq. ft.

    • Penthouse Collection | Carpet Area ~4,847 sq. ft. | Super Area ~7,714 sq. ft.

    • Double-core design with just 2 residences per core – ultimate privacy

    • 12 ft. wide decks with panoramic views of the Aravallis & city skyline

    • 3.4m floor-to-floor height for airy, light-filled interiors

    • Natural-inspired lobbies & common areas with cafés, lounges, hobby zones & daycare

Connectivity & Business Advantage

Community & Lifestyle

DLF Privana is designed as a pedestrian-first, wellness-oriented ecosystem:

    • Cycling & jogging tracks across the neighbourhood

    • 6-lane Olympic-size swimming pool & leisure pools

    • Amphitheatre, Reflexology Pavilion, Healing & Scented Gardens

    • Pet park, kids’ play zones & eco ponds

    • Smart safety: wide illuminated roads, rumble strips, cat’s eye reflectors, 24/7 surveillance

    • Sustainability focus: recycled water irrigation, solar panels, eco-friendly systems

The DLF Legacy

  • 78+ years of trust & innovation

  • 350+ million sq. ft. delivered across India

  • Iconic landmarks: DLF5, DLF Golf Links, CyberHub

  • 1,900+ families already part of Privana South & West – with property values appreciating over ₹1 Cr in 16 months

DLF Privana – A Neighbourhood Without Compromise.
Where community, design, and nature merge to shape the future of Gurugram.

Visit the DLF Experience Gallery today & be a part of The Neighbourhood of Tomorrow.